7554RC11918
Rustico casale a Riomaggiore con 4 locali di 60 m2
Riomaggiore
Residenziale
Trattativa Riservata









































Tipologia: Rustico casale
Locali: 4
Metratura: 60 m2
Locali: 4
Metratura: 60 m2
Zona: Riomaggiore
Camere: 2
Condizioni: Ottime
Camere: 2
Condizioni: Ottime
Località Riomaggiore
Bagni: 1
Bagni: 1
Descrizione
RUSTICO PETER PAN - SANTUARIO DI MONTENERO - RIOMAGGIORE
Il Rustico di Peter Pan – Dove il sogno incontra la terra
A pochi passi dal celebre Santuario di Montenero, sospeso tra il cielo e il mare, sorge il Rustico di Peter Pan: una dimora bifamiliare libera su tre lati, completamente ristrutturata, pronta ad accogliere chi è alla ricerca di un angolo autentico e suggestivo nel cuore delle Cinque Terre.
Incastonato tra la vegetazione mediterranea e affacciato su una vista mare a 180 gradi, questo rustico rappresenta l'equilibrio perfetto tra natura, privacy, comfort e accessibilità.
La proprietà in dettaglio:
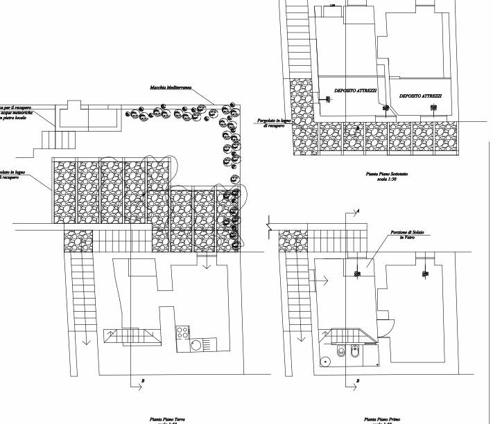
• Superficie abitativa di circa 70 mq, distribuita su due livelli
• Circa 800 mq di terreno privato, che circondano la casa con profumi di rosmarino, sole e mare
• Al piano terra, una luminosa zona cucina-pranzo, un accogliente salotto con stufa, perfetto per le serate d'autunno
• Al piano superiore, due camere da letto con scorci incantevoli e un bagno finestrato
• Terrazza panoramica esterna, un vero palcoscenico sul tramonto
• Ripostiglio funzionale all'interno del sottoscala
• Immobile accatastato come civile abitazione, quindi regolarmente affittabile come casa vacanze
• Facile accesso carrabile: un vantaggio raro e prezioso per la zona
Elementi distintivi:
?? Esposizione perfetta verso ovest, per godere ogni giorno di tramonti mozzafiato
?? A pochi minuti a piedi dai sentieri del Parco delle Cinque Terre, che conducono direttamente al centro di Riomaggiore
?? Porzione libera su tre lati, attigua solo a un rudere in fase di ristrutturazione
?? Intervento di ristrutturazione completo: impianti, finiture, infissi, struttura
?? Una residenza dal carattere autentico, ideale per vivere o investire
Il Rustico di Peter Pan è un rifugio dell'anima, un luogo dove ogni dettaglio racconta una storia di silenzio, luce e meraviglia.
Immagina un calice di vino al tramonto, il profilo delle isole sullo sfondo e la sensazione unica di essere esattamente dove desideravi essere.
Questa non è una semplice casa. È una visione.
Contattaci per una visita riservata
Il Rustico di Peter Pan – Dove il sogno incontra la terra
A pochi passi dal celebre Santuario di Montenero, sospeso tra il cielo e il mare, sorge il Rustico di Peter Pan: una dimora bifamiliare libera su tre lati, completamente ristrutturata, pronta ad accogliere chi è alla ricerca di un angolo autentico e suggestivo nel cuore delle Cinque Terre.
Incastonato tra la vegetazione mediterranea e affacciato su una vista mare a 180 gradi, questo rustico rappresenta l'equilibrio perfetto tra natura, privacy, comfort e accessibilità.
La proprietà in dettaglio:
• Superficie abitativa di circa 70 mq, distribuita su due livelli
• Circa 800 mq di terreno privato, che circondano la casa con profumi di rosmarino, sole e mare
• Al piano terra, una luminosa zona cucina-pranzo, un accogliente salotto con stufa, perfetto per le serate d'autunno
• Al piano superiore, due camere da letto con scorci incantevoli e un bagno finestrato
• Terrazza panoramica esterna, un vero palcoscenico sul tramonto
• Ripostiglio funzionale all'interno del sottoscala
• Immobile accatastato come civile abitazione, quindi regolarmente affittabile come casa vacanze
• Facile accesso carrabile: un vantaggio raro e prezioso per la zona
Elementi distintivi:
?? Esposizione perfetta verso ovest, per godere ogni giorno di tramonti mozzafiato
?? A pochi minuti a piedi dai sentieri del Parco delle Cinque Terre, che conducono direttamente al centro di Riomaggiore
?? Porzione libera su tre lati, attigua solo a un rudere in fase di ristrutturazione
?? Intervento di ristrutturazione completo: impianti, finiture, infissi, struttura
?? Una residenza dal carattere autentico, ideale per vivere o investire
Il Rustico di Peter Pan è un rifugio dell'anima, un luogo dove ogni dettaglio racconta una storia di silenzio, luce e meraviglia.
Immagina un calice di vino al tramonto, il profilo delle isole sullo sfondo e la sensazione unica di essere esattamente dove desideravi essere.
Questa non è una semplice casa. È una visione.
Contattaci per una visita riservata
Caratteristiche
- Riscaldamento: Autonomo
- Vani: 4
- Camere: 2
- Cucina: Angolo cottura
- Ascensore: No
- Classe Energetica: G
- Ipe: 98,9
- Piani: 1
- Giardino: Si
- Arredato: Si



+39 0187 484949
info@immobiliarelafenice-sp.it


40 Foto
1 Video
0187 484949
info@immobiliarelafenice-sp.it