AP 239-110
Appartamento a La spezia con 2 locali di 50 m2
Porto lotti
Residenziale
euro 105.000






















Tipologia: Appartamento
Locali: 2
Metratura: 50 m2
Locali: 2
Metratura: 50 m2
Zona: La spezia
Camere: 1
Condizioni: Buone
Camere: 1
Condizioni: Buone
Località Porto lotti
Bagni: 1
Bagni: 1
Descrizione
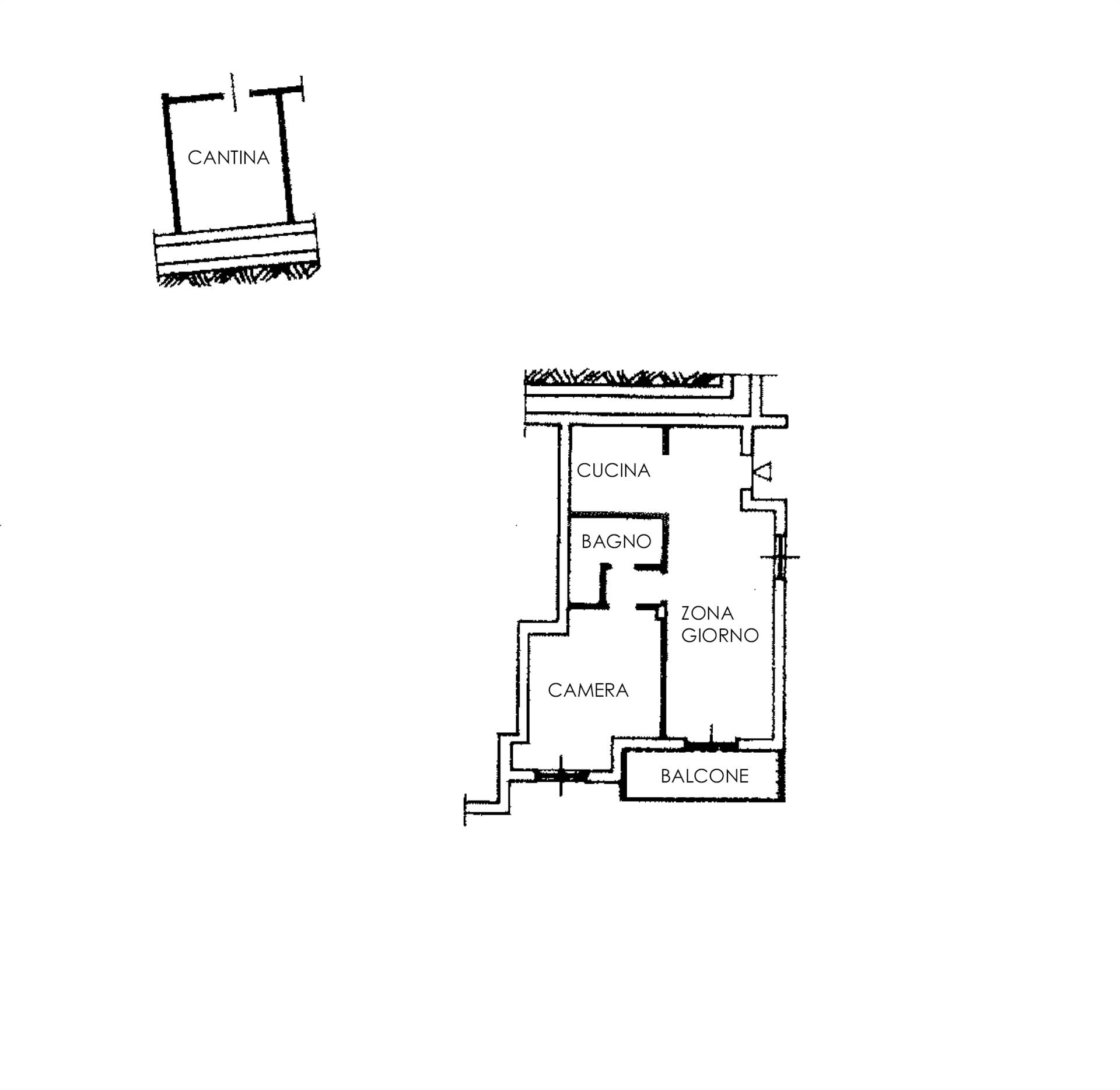
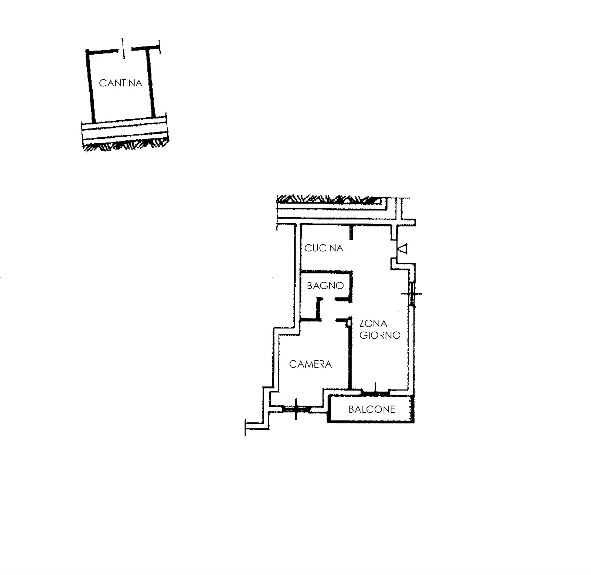
Hai deciso di comprare una casa con tutti i confort ma non sai dove prenderla...bene questo appartamento fa proprio al caso tuo, è a due passi da Porto Lotti e da Viale San Bartolomeo dove puoi avere a disposizione tutti i servizi di cui hai bisogno; in più la zona giorno è molto ampia e questo ti permetterà di invitare a casa i tuoi amici o i parenti per poter stare insieme. La particolarità di questa casa è proprio il facile accesso , che può essere in due modi : dall'ascensore , che parte parte dall'ingresso condominiale ed arriva direttamente al tuo piano senza dover fare nessun gradino oppure puoi prendere le scale esterne (sono circa 16 gradini) che dal piazzale esterno ti portano proprio davanti al portoncino d'ingresso dell'appartamento. L'appartamento di circa 50 mq è posto al 1° piano di una piccola palazzina ed è suddiviso in ampia zona giorno con angolo cottura ed accesso al balcone (6 mq ca.) , una camera da letto matrimoniale ed un bagno con doccia dove è possibile posizionare anche la lavatrice (il bagno non ha finestre); Completano la vendita un'ampia cantina di circa 10 mq posta al piano superiore (l'ascensore arriva direttamente al piano) ed un posto auto assegnato in area condominiale proprio di fronte al palazzo (si accede all'area condominiale tramite cancello elettrico o cancelletto pedonale) Il riscaldamento è termo autonomo con caldaia presente all'interno dell'appartamento , gli infissi sono in pvc con doppio vetro ;
Caratteristiche
- Riscaldamento: Autonomo
- Vani: 2
- Camere: 1
- Cucina: Angolo cottura
- Piano: 1
- Ascensore: Si
- Classe Energetica: G
- Ipe: 211,71
- Piani: 5
- Balcone: Si
- Postoauto: Si
- Cantina: Si



+39 0187 484949
info@immobiliarelafenice-sp.it


21 Foto
1 Video
0187 484949
info@immobiliarelafenice-sp.it