7554RA15610
Attico a Monterosso al mare con 4 locali di 75 m2
Fegina
Residenziale
euro 430.000



































Tipologia: Attico
Locali: 4
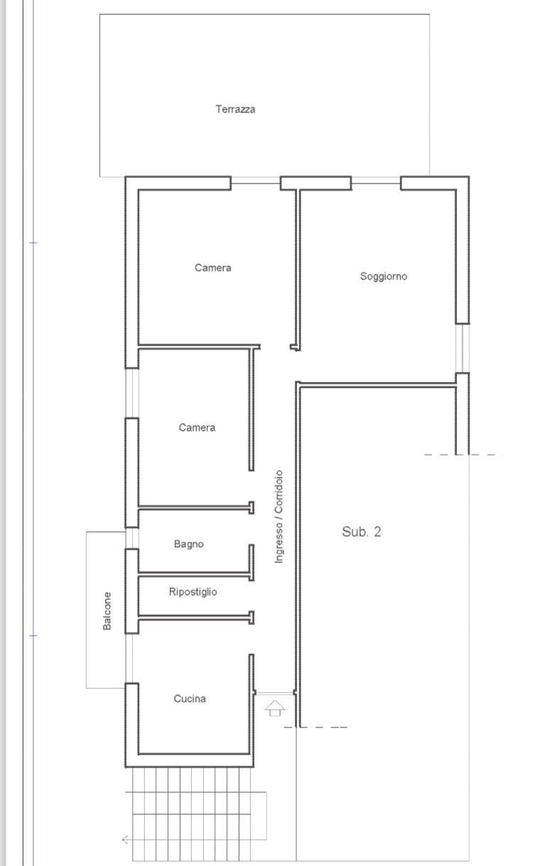
Metratura: 75 m2
Locali: 4
Metratura: 75 m2
Zona: Monterosso al mare
Camere: 2
Condizioni: Da ristrutturare
Camere: 2
Condizioni: Da ristrutturare
Località Fegina
Bagni: 1
Bagni: 1
Descrizione
TERRAZZA DI PADRE SEMERIA - MONTEROSSO AL MARE -CINQUE TERRE
Immagina di essere seduto sulla terrazza di questo splendido immobile a Monterosso al Mare, con la brezza marina che accarezza il tuo viso e il suono delle onde che ti culla dolcemente.
Davanti a te si estende uno spettacolo mozzafiato: il mare cristallino si perde all'orizzonte, regalandoti una vista senza pari.
Qui, insieme alla tua famiglia, ti godi un aperitivo al tramonto, tra colori caldi e sfumature dorate che dipingono il cielo.
Il profumo del mare e il suono delle risate dei tuoi cari riempiono l'aria, creando un'atmosfera magica e indimenticabile.
Questa terrazza vista mare è il luogo perfetto per vivere momenti di relax e condivisione con chi ami, immersi nella bellezza e nella tranquillità di Monterosso al Mare.
Un angolo di paradiso dove ogni sorriso diventa ancora più luminoso di fronte a un panorama così suggestivo.
INFO TECNICHE:
SUPERFICIE COMMERCIALE APPARTAMENTO MQ. 85
SUPERFICIE UTILE APPARTAMENTO
MQ. 75
SUPERFICIE COMMERCIALE TERRAZZA
MQ. 35
Immobile posto a circa 10 minuti a piedi dalla STAZIONE, per quanto riguarda il parcheggio auto è presente uno spazio condominiale non assegnato dove c'è possibilità di parcheggiare un'auto di piccole dimensioni.
Internamente l'immobile si presenta con le finiture dell'epoca e richiedere lavori di ristrutturazione con la possibilità di realizzare anche il secondo bagno.
Vieni a scoprire questo immobile unico e lasciati conquistare dalla bellezza e dalla serenità che solo una vista mare come questa può regalarti. Monterosso al Mare ti aspetta, pronto a regalarti emozioni uniche e indimenticabili.
Immagina di essere seduto sulla terrazza di questo splendido immobile a Monterosso al Mare, con la brezza marina che accarezza il tuo viso e il suono delle onde che ti culla dolcemente.
Davanti a te si estende uno spettacolo mozzafiato: il mare cristallino si perde all'orizzonte, regalandoti una vista senza pari.
Qui, insieme alla tua famiglia, ti godi un aperitivo al tramonto, tra colori caldi e sfumature dorate che dipingono il cielo.
Il profumo del mare e il suono delle risate dei tuoi cari riempiono l'aria, creando un'atmosfera magica e indimenticabile.
Questa terrazza vista mare è il luogo perfetto per vivere momenti di relax e condivisione con chi ami, immersi nella bellezza e nella tranquillità di Monterosso al Mare.
Un angolo di paradiso dove ogni sorriso diventa ancora più luminoso di fronte a un panorama così suggestivo.
INFO TECNICHE:
SUPERFICIE COMMERCIALE APPARTAMENTO MQ. 85
SUPERFICIE UTILE APPARTAMENTO
MQ. 75
SUPERFICIE COMMERCIALE TERRAZZA
MQ. 35
Immobile posto a circa 10 minuti a piedi dalla STAZIONE, per quanto riguarda il parcheggio auto è presente uno spazio condominiale non assegnato dove c'è possibilità di parcheggiare un'auto di piccole dimensioni.
Internamente l'immobile si presenta con le finiture dell'epoca e richiedere lavori di ristrutturazione con la possibilità di realizzare anche il secondo bagno.
Vieni a scoprire questo immobile unico e lasciati conquistare dalla bellezza e dalla serenità che solo una vista mare come questa può regalarti. Monterosso al Mare ti aspetta, pronto a regalarti emozioni uniche e indimenticabili.
Caratteristiche
- Riscaldamento: Inesistente
- Vani: 4
- Camere: 2
- Cucina: Abitabile
- Piano: 4
- Ascensore: No
- Classe Energetica: G
- Ipe: 167,89
- Piani: 5
- Balcone: Si
- Terrazzo: Si



+39 0187 484949
info@immobiliarelafenice-sp.it


34 Foto
1 Video
0187 484949
info@immobiliarelafenice-sp.it