AP 233-135
Appartamento a La spezia con 3 locali di 65 m2
Canaletto
Residenziale
euro 150.000










Tipologia: Appartamento
Locali: 3
Metratura: 65 m2
Locali: 3
Metratura: 65 m2
Zona: La spezia
Camere: 2
Condizioni: Ristrutturato
Camere: 2
Condizioni: Ristrutturato
Località Canaletto
Bagni: 1
Bagni: 1
Descrizione
RESIDENZA DELLA TORRE - LA SPEZIA
APPARTAMENTO IN FASE DI RISTRUTTURAZIONE
CONTESTO: Residenziale caratterizzato da palazzi e attività commerciali di ogni genere . L'immobile si trova vicino a scuola materna ed elementare ;
Si raggiunge senza auto ogni genere di attività commerciale ( farmacia , frutta & verdura , panificio , macelleria) Ha una posizione ottimale per la vicinanza anche al supermercato COOP ;
Fermata dei Mezzi pubblici davanti all'ingresso dello stabile ;
Parcheggi su strada nelle adiacenze ;
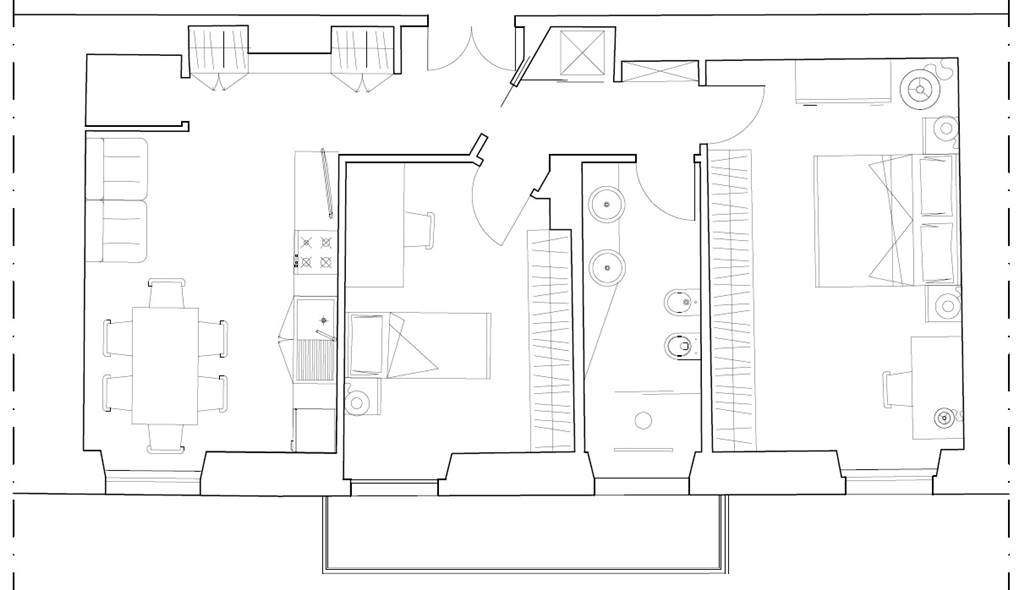
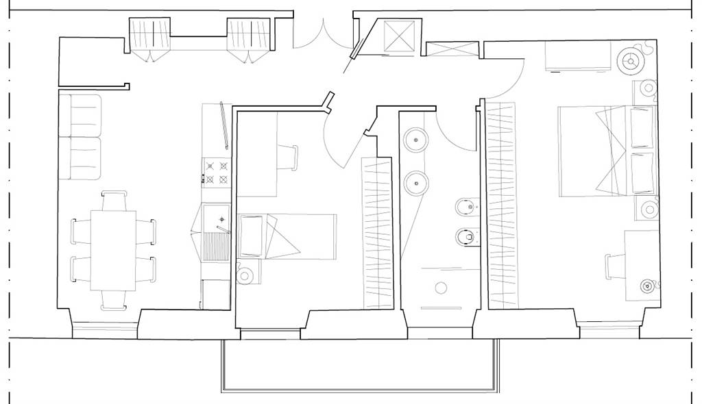
TIPOLOGIA : Appartamento di mq 75 COMMERCIALI sito al 2 PIANO di 7 con ASCENSORE . Attualmente la soluzione ha pianta orizzontale. L'ingresso è su corridoio ;
Sono presenti due locali oltre bagno e attuale locale cucina con balcone oltre a ripostiglio.
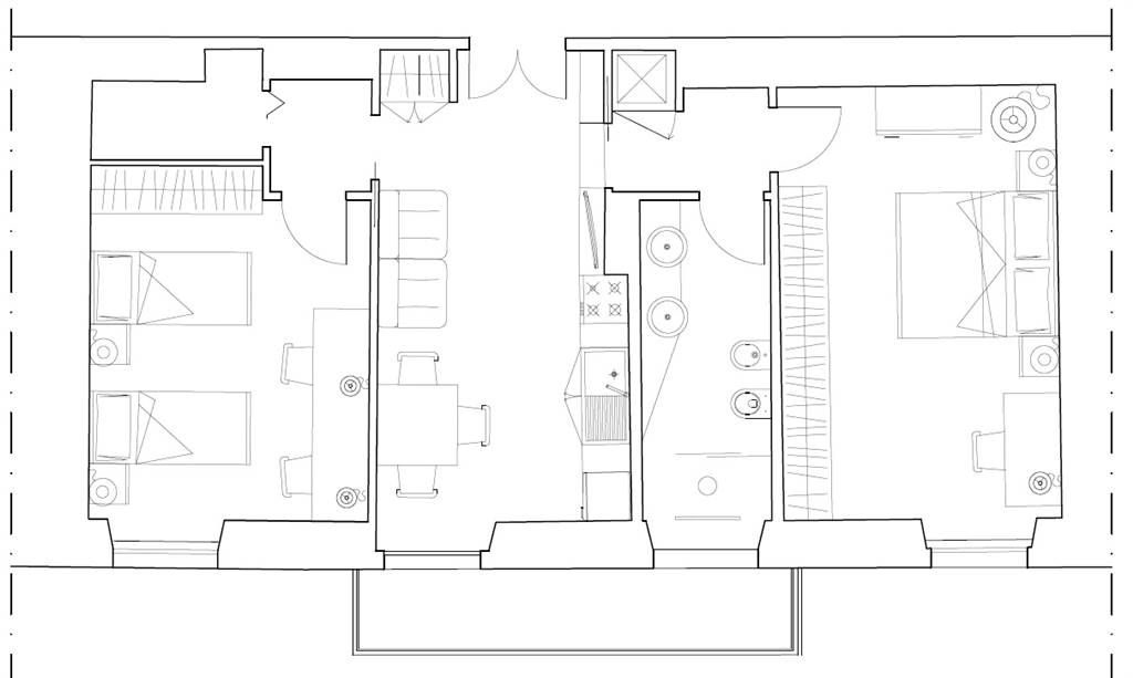
L'appartamento è in fase di ristrutturazione completa , sarà suddiviso in zona giorno con soluzione open space ed angolo cottura a vista , DUE CAMERE , bagno con doccia e ripostiglio ;
L'immobile viene consegnato come nuovo completo di condizionamento e riscaldamento autonomo .
Le foto sono RENDER indicativi per dare idea delle finiture interne che vengono realizzate, in questa fase è possibile personalizzare in base alla richiesta del cliente .
APPARTAMENTO IN FASE DI RISTRUTTURAZIONE
CONTESTO: Residenziale caratterizzato da palazzi e attività commerciali di ogni genere . L'immobile si trova vicino a scuola materna ed elementare ;
Si raggiunge senza auto ogni genere di attività commerciale ( farmacia , frutta & verdura , panificio , macelleria) Ha una posizione ottimale per la vicinanza anche al supermercato COOP ;
Fermata dei Mezzi pubblici davanti all'ingresso dello stabile ;
Parcheggi su strada nelle adiacenze ;
TIPOLOGIA : Appartamento di mq 75 COMMERCIALI sito al 2 PIANO di 7 con ASCENSORE . Attualmente la soluzione ha pianta orizzontale. L'ingresso è su corridoio ;
Sono presenti due locali oltre bagno e attuale locale cucina con balcone oltre a ripostiglio.
L'appartamento è in fase di ristrutturazione completa , sarà suddiviso in zona giorno con soluzione open space ed angolo cottura a vista , DUE CAMERE , bagno con doccia e ripostiglio ;
L'immobile viene consegnato come nuovo completo di condizionamento e riscaldamento autonomo .
Le foto sono RENDER indicativi per dare idea delle finiture interne che vengono realizzate, in questa fase è possibile personalizzare in base alla richiesta del cliente .
Caratteristiche
- Riscaldamento: Autonomo
- Vani: 3
- Camere: 2
- Cucina: Abitabile
- Piano: 2
- Ascensore: Si
- Classe Energetica: E
- Ipe:
- Piani: 7
- Balcone: Si
- Condizionamento: Si



+39 0187 484949
info@immobiliarelafenice-sp.it


9 Foto
0187 484949
info@immobiliarelafenice-sp.it