VI 054-450
Appartamento a La spezia con 4 locali di 165 m2
Cadimare
Residenziale
euro 380.000


























Tipologia: Appartamento
Locali: 4
Metratura: 165 m2
Locali: 4
Metratura: 165 m2
Zona: La spezia
Camere: 2
Condizioni: Abitabile
Camere: 2
Condizioni: Abitabile
Località Cadimare
Bagni: 1
Bagni: 1
Descrizione
RESIDENZA DEL NOSTROMO:
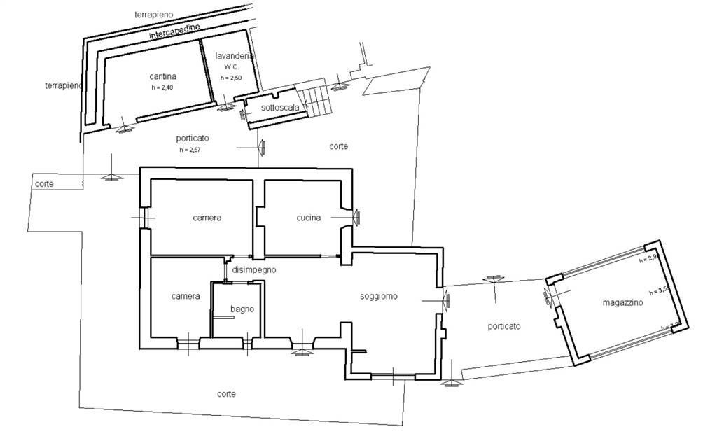
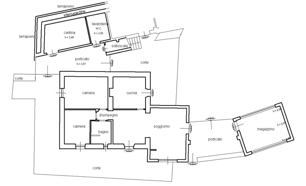
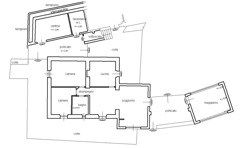
Avere una vista mare come questa a pochi minuti dal mare e dal centro della città non è facile. Questa residenza offre indipendenza, vista e relax per chi ama la pace e la tranquillità. Il terreno circostante è ideale per realizzare una bellissima PISCINA per trascorrere le soleggiate giornate estive con gli amici. Avendo la possibilità di acquistare con trattativa separata anche la porzione restante della Villa si ha la possibilità di realizzare anche una struttura TURISTICO RICETTIVA di alto livello. SCHEDA TECNICA IMMOBILE: Piano T° - Locali 5- Soggiorno doppio - Camere da letto 2 - Bagni 1 - Superficie complessiva 115 mq COMMERCIALI ca abitazione principale. - tipo di riscaldamento autonomo - infissi in legno - Giardino privato - Terreno privato mq. 3582 - Cantina 13,50 - Zona lavanderia mq. 6.32 - Tavernetta mq. 19,30 - Portico mq. 23,50 - Box Auto singolo mq.19 al piano seminterrato magazzino mq. 19,30 e intercapedine ;
DOVE: La Spezia, Prima collina sopra Marola - Cadimare direzione Campiglia a pochi minuti di auto dal centro città e dal mare;
COSA: Appartamento in villetta bifamiliare , esposizione esterna (su giardino privato) , soggiorno doppio con sala da pranzo ed accesso diretto al giardino , cucina abitabile , camera matrimoniale , camera singola , bagno finestrato con vasca. Particolare dettaglio di un piccolo camino nel soggiorno da sfruttare nelle giornate invernali;
SERVIZI ACCESSORI : Box Auto singolo , Cantina , Zona lavanderia , Tavernetta , Giardino privato , Terreno con piccolo rustico al suo interno;
STATO DI MANUTENZIONE: Finiture eleganti , impianti funzionanti;
CARATTERISTICHE DI RILIEVO : La soluzione è ideale per chi vuole godersi un po' di tranquillità e relax con la splendida vista mare,
ULTERIORI INFORMAZIONI UTILI: Riscaldamento autonomo;
Avere una vista mare come questa a pochi minuti dal mare e dal centro della città non è facile. Questa residenza offre indipendenza, vista e relax per chi ama la pace e la tranquillità. Il terreno circostante è ideale per realizzare una bellissima PISCINA per trascorrere le soleggiate giornate estive con gli amici. Avendo la possibilità di acquistare con trattativa separata anche la porzione restante della Villa si ha la possibilità di realizzare anche una struttura TURISTICO RICETTIVA di alto livello. SCHEDA TECNICA IMMOBILE: Piano T° - Locali 5- Soggiorno doppio - Camere da letto 2 - Bagni 1 - Superficie complessiva 115 mq COMMERCIALI ca abitazione principale. - tipo di riscaldamento autonomo - infissi in legno - Giardino privato - Terreno privato mq. 3582 - Cantina 13,50 - Zona lavanderia mq. 6.32 - Tavernetta mq. 19,30 - Portico mq. 23,50 - Box Auto singolo mq.19 al piano seminterrato magazzino mq. 19,30 e intercapedine ;
DOVE: La Spezia, Prima collina sopra Marola - Cadimare direzione Campiglia a pochi minuti di auto dal centro città e dal mare;
COSA: Appartamento in villetta bifamiliare , esposizione esterna (su giardino privato) , soggiorno doppio con sala da pranzo ed accesso diretto al giardino , cucina abitabile , camera matrimoniale , camera singola , bagno finestrato con vasca. Particolare dettaglio di un piccolo camino nel soggiorno da sfruttare nelle giornate invernali;
SERVIZI ACCESSORI : Box Auto singolo , Cantina , Zona lavanderia , Tavernetta , Giardino privato , Terreno con piccolo rustico al suo interno;
STATO DI MANUTENZIONE: Finiture eleganti , impianti funzionanti;
CARATTERISTICHE DI RILIEVO : La soluzione è ideale per chi vuole godersi un po' di tranquillità e relax con la splendida vista mare,
ULTERIORI INFORMAZIONI UTILI: Riscaldamento autonomo;
Caratteristiche
- Riscaldamento: Autonomo
- Vani: 4
- Camere: 2
- Cucina: Abitabile
- Ascensore: No
- Classe Energetica: G
- Ipe: 175
- Giardino: Si
- Sup. Giardino: 3200
- Garage: Si
- Arredato: Si



+39 0187 484949
info@immobiliarelafenice-sp.it


25 Foto
4 Video